Skip to main content

Door Damper Replacement – Fusion Galvo

How do I replace the door damper in the Fusion Galvo?

Introduction

This guide provides step-by-step instructions for replacing the door damper on Epilog Laser G100 series systems. The procedure shown covers the replacement of the GC0233 (right side door damper), but the steps are identical for the GC0232 (left side door damper). Before starting, verify the part number on your replacement damper to ensure you have the correct component. The process includes removing the door, installing the new damper, and reassembling the engraver. Be sure to follow all recommended safety precautions throughout the procedure.

Door Damper Removal

  1. Turn off engraver
    Turning off the engraver
  2. Disconnect from power
    Disconnecting power from the engraver
  3. Loosen and remove screws
    Removing initial screws for panel access
  4. Remove panel
    Panel removal step 1
  5. Loosen and remove
    Loosening more components
  6. Remove panel
    Removing another panel section
  7. Loosen and remove
    More screw removal
  8. Remove panel
    Panel being removed again
  9. Loosen and remove
    Final panel screw removal
  10. Remove panel
    Last panel removal
  11. Loosen and remove
    Loosening final mounting screws
  12. Loosen and remove
    Loosening belt screws
  13. Tilt engraver
    Tilting the engraver for access
  14. Lay engraver on its back
    Engraver laid on its back
  15. Open the door
    Opening door for removal
  16. Depress slide lever (left)
    Depressing left slide lever
  17. Depress slide lever (right)
    Depressing right slide lever
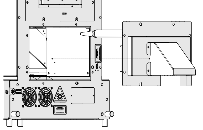
  18. Remove the door
    Removing the door from the engraver
  19. Loosen, but do not remove
    Loosening left motor screws
  20. Loosen, but do not remove
    Loosening right motor screws
  21. Slide motor to relieve tension
    Sliding motor
  22. Remove old belt
    Removing the belt
  23. Follow motor harness and disconnect
    Disconnecting the motor harness
  24. Remove
    Disconnecting the motor harness
  25. Remove motor
    Disconnecting the motor harness
  26. Loosen but do not remove
    Loosening damper hardware
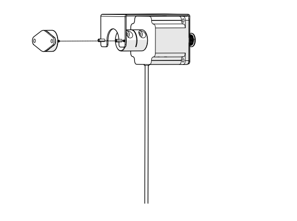
  27. Remove damper
    Removing the damper

Door Damper Installation

  1. Install door damper
    Installing the new damper
  2. Tighten
    Loosening damper hardware for adjustment
  3. Install motor
    Installing the motor
  4. Reconnect motor harness
    Reconnecting the motor harness
  5. Install but do not tighten.
    Installing the motor hardware
  6. Install new belt
    Installing new belt
  7. Tension the motor
    Tensioning and securing the motor
  8. Tighten
    Tightening motor mounting screws

  9. Position belt block at bottom of travel
    Positioning the belt block
  10. Place door back onto engraver
    Placing the door back onto the engraver
  11. Ensure door is seated correctly on slides
    Seating the door correctly
  12. Close the door
    Closing the door
  13. Return engraver to upright position
    Returning the engraver to upright position

Reassembly

  1. Install and tighten screws
    Installing and tightening screws
  2. Install and tighten screws
    Installing and tightening more screws
  3. Install panel
    Installing the panel back onto the engraver
  4. Install and tighten
    Installing and tightening screws on the panel
  5. Install panel
    Reinstalling the panels
  6. Install and tighten
    Tightening screws on the panel
  7. Install panel
    Installing the panel back onto the engraver
  8. Install and tighten
    Tightening screws on the panel
  9. Install panel
    Reinstalling the panel
  10. Install and tighten
    Tightening screws on the panel

  11. Reconnect engraver to power
    Reconnecting power to the engraver

Was this helpful?

Yes
No
Thanks for your feedback!
  • ID:
    KA-01596
  • Date:
    06/23/2025

Tools:

  • T30 Torx Driver
  • T10 Torx Driver
  • 9/64” Allen Wrench

Parts & Resources:

  • GC0233 - Damper, Rotary, 500gfcm, CW
  • GC0232 - Damper, Rotary, 500gfcm, CCW